Konsep Site Plan Rusunami

Mensiasati hunian yang semakin terbatas di lahan terbatas, maka kami mengajukan alternatif disain site plan yang dikembangkan ke atas (vertikal).

Kosep Site Plan Rusunami


Saat ini rusunami belum populer, tetapi kami yakin kelak waktunya akan datang dimana masyarakat dapat menerima tinggal di rumah susun yang memeliki fasilitas beragam dengan konsep lingkungan yang nyaman dan mandiri.

Berikut adalah konsep disain site plan untuk rusunami (Rumah Susun Milik) di lahan yang direncanakan untuk permahan tapak atau perumahan mendatar.

Kemauan Developer untuk mengembangkan rusunami di berbagai kota di Indonesia menjadi wacana yang menarik untuk terus didiskusikan, dan berharap regulasi serta kultur masyarakat dapat mendukung pertumbuhan rusunami di Indonesia.

Mendukung dan Mempopulerkan Rusunami ke Pengembang


Kami siap membantu Anda mengembangkan lahan yang dimiliki untuk direncanakan sebagai rumah susun milik. Berikut adalah konsep disain rusunami yang kami rencanakan sebagai wahana meyakinkan Developer mendukung pengembangan rusunami di lahan mereka.

Rumah Susun Milik
Danau untuk menjaga stok air tanah

Rumah Susun Milik
Penampang rusunami dari arah depan

Rumah Susun Milik
Lipatan-lipatan rusunami ini akan mempercantik wajah kota

Mensiasati jumlah tower di lahan terbatas

Rumah Susun Sewa
Setiap tower saling berhubungan dengan bangunan antara

Rumah Susun Sewa
Prasarana olah raga tidak ketinggalan dalam disainnya

Rumah Susun Sewa
Masjid yang dibentengi tower-tower

Rusunami
Sirkulasi dan sarana parkir tetap terperhatikan masimal

Rusunami
Sela-sela antar tower yang mengikat

Rusunami
Memaksimalkan posisi tower di lahan terbatas

Apartemen Sederhana
Bundara sebagai pembangi zona
Apartemen Sederhana
Main building depan yang simetris dengan kawasan

Rencana Site Plan Rumah Susun


Berikut adalah gambar dari rencana site plan rumah susun yang kami rencanakan di salah satu ibukota propinsi di Indonesia:

Gambar Site Plan Rusunami
Dengan berbagai fasilitas pendukung, rumah susun ini menjadi lebih modern

Gambar Site Plan Rusunami
Penzoningan rumah susun


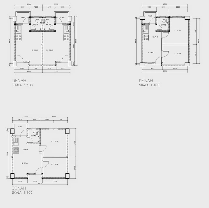
Unit Rumah Susun


Gambar berikut menampilkan gambar rencana unit-unit rumah susun yang akan dikembangkan menjadi kawasan rusunami terpadu

Gambar Denah Rusunami
Unit ruah susun sesuai tipenya

Gambar Denah Rusunami
Penyatuan dena-denah di rumah susun

Gambar Visual Site Plan Rusunami


Untuk mempermudah Anda membayangkan bentuk site plan rusunami yang kami rencanakan, maka berikut adalah disain site plan rusunami yang kami rencanakan di lahan tersebut.

Site Plan Rusunami
Paduan tower-tower yang membentuk huruf kawasan

Site Plan Rusunami
Peletakan bangunan yang efisien

Site Plan Rusunami
Main enterance kawasan rusunami

Site Plan Rusunawa
Main enterance yang diapit prasarana komersial

Site Plan Rusunawa
Membendung kali untuk mendapatkan stok air bersih terolah

Site Plan Rusunawa
Lapangan futsal sebagai fasilitas pendukung

Site Plan Rumah Susun
Menyiapkan club house untuk menjaga keakraban komunitas

Site Plan Rumah Susun
Tampilan kawasan arah utara, yang akan menarik di google map

Hubungi kami untuk disain site plan rumah susun (rusunawa) dan apartemen.




rusunami cawang |rusunami kelapa gading | harga rusunami | rusunami salemba | rusunami kalibata | lokasi rusunami jakarta | rusunami jakarta pusat | sewa rusunami kalibata | pengertian rumah susun | latar belakang rumah susun | harga rumah susun | rumah susun dijual | pembangunan rumah susun | rumah susun kemayoran | rumah susun tebet | rumah susun hukum agraria | rusun marunda | rusun tanah abang | rusun kebon kacang | rusun petamburan | rusun daan mogot | rusun kemayoran disewakan | rusun rawa bebek | rusun cengkareng

Rumah Panggung

Dalam mengerjakan site plan kami juga memberikan usulan konsep unit, berikut adalah salah satu usulan disain yang kemudian diwujudkan di lapangan dengan tambahan ornamen atau bahan material yang sesuai dengan keseluruan disain site plan yang kami rencanakan.

rumah panggung

rumah panggung

gambar rumah panggung

gambar rumah panggung

3d rumah panggung

3d rumah panggung

3d rumah panggung

3d rumah panggung

contoh rumah panggung

contoh rumah panggung

contoh rumah panggung

disain rumah panggung

disain rumah panggung

disain rumah panggung


desain rumah panggung

desain rumah panggung

gambar rumah panggung

gambar rumah panggung







rumah panggung | rumah panggung berasal dari | rumah panggung minimalis | rumah panggung sederhana | rumah panggung kayu | rumah panggung modern | rumah panggung jambi | rumah panggung sunda | rumah panggung dari | rumah panggung minahasa | rumah panggung manado | rumah panggung adalah | rumah panggung adalah rumah adat | rumah panggung adalah rumah adat daerah | rumah panggung aceh | rumah panggung antik | rumah panggung adat sunda | rumah panggung adat jambi | rumah panggung adalah rumah adat dari daerah | rumah panggung adalah rumah adat masyarakat | rumah panggung adalah rumah adat tradisional masyarakat | rumah panggung bugis | rumah panggung beton | rumah panggung berasal dari provinsi | rumah panggung berasal dari mana | rumah panggung bangka belitung | rumah panggung bambu | rumah panggung berasal dari suku |rumah panggung bilik | rumah panggung berasal | rumah panggung cantik | rumah panggung cor | rumah panggung cianjur | rumah panggung citepus | rumah panggung dari kayu | rumah panggung dari provinsi | rumah panggung dari daerah | rumah panggung dari jambi | rumah panggung dari bambu | rumah panggung diatas kolam | rumah panggung dari mana | rumah panggung desa | mimpi di rumah panggung | taman di rumah panggung |

Site Plan dari Pentahapan Pembayaran Lahan

Kami juga dapat membantu pengembang yang mengusulkan solusi pentahapan pembelian lahan. Berikut adalah contoh site plan yang direncanakan karena pentahapan pembayaran dan pada akhir pekerjaan pemilik lahan memiliki sisa lahan yang tetap dikuasainya.

Awal Gambar Perencanaan

Tahan seluas 16 Ha (166.981 m2) terdiri dari beberapa penggarap, yang dibayarkan secara bertahap, dan pemilik tanah belum membayar lunas seluruh lahan, mereka memerlukan biaya pelunasan dibeberapa petak, tetapi dana yang dimiliki developer belum cukup. Dari pola pembelanjaan seperti itu kami ditugaskan melakukan perencanaan site plan.

Bikin Site Plan dari Sertivikat

Beikut adalah nama-nama penggarap yang mereka miliki, di website ini kami sengaja tidak menginformasikan skema pembayaran kepada mereka, tetapi dapat menjadi gambaran bagaimana perencanaan dapat fleksibel mengikuti kondisi agar proyek perumahan ini terwujud.

Bikin Site Plan dari Sertivikat

Pentahapan lahan terbut terbagai seerti gambar dibawah ini, nomor-nomor dalam gambar tersebut adalah pintu-pintu cluster yang secara keseluruhan ada 7 pintu cluster.

Kami ditugaskan untuk menyisakan 1.600 m2 (10% luas lahan) kepada pemilik lahan, sebagai persentase lahan yang tidak dilepas oleh pemilik. Untuk itu kami juga menyiakannya seperti yang terlihat dalam gambar.
Bikin Site Plan dari Sertivikat

Tahap 1

Di tahap ini kami rencanakan untuk membangun jalan sementara, untuk perumahan ini agar developer dapat mengefisiensikan investasi, adapun pembeli pertama perumahan ini adalah secara kolektif diawal, sehingga tingkat resiko kecil bagi pengembang. Kavling yang dibangun 6 x 12 (tipe 36/72) dan sebagian 6 x 12 (tipe 26/84).

Bikin Site Plan dari Sertivikat

Tahap 2

 Pembangunan tahap 2 mulai pemebar, tetapi tetap mempertahankan lahan depan sebagai aset waktu, agar nilai propertinya meningkat. Karena jumlah penghuni sudah semakin banyak dan harga di tahap 2 ini juga meningkat maka bersamaan dengan penyelesaian tahap 2, jalan utama (bolevard) sudah terbangun, dan selesai menjelang pelaksanaan tahap 3.

Pada tahap ini lahan yang tetap dikuasai oleh pemilik lahan seluas 16.600 m2 sudah mulai dapat dibangun oleh mereka.

Bolevard tersebut hanya digunakan satu jalan saja, sedangkan jalan laninnya masih digunakan sebagai jalan konstruksi untuk keluar masuk material di tahap 2, 3, 4.
Bikin Site Plan dari Sertivikat

Tahap 3

Pada tahap ini mulai dibangun kavling 6 x 14 (tipe 36/84), areal depan juga mulai dibangun, tetapi kavling-kavling di sisi boulevard sengaja belum dibangun karena direncanakan menjadi areal komersial yang bernilai jual tinggi.
Bikin Site Plan dari Sertivikat

Tahap 4

 Tahap ini adalah finalisasi dari pembangunan perumahan 16 hektar ini. Seperti yang terlhat dalam gambar kavling 7 x 15 (tipe 84/105) sudah mulai dibangun.
Bikin Site Plan dari Sertivikat




pengertian real estate | alamat real estate indonesia | real estate jakarta selatan | anggota real estate indonesia | makalah real estate | definisi real estate | real estate indonesia expo | real estate

Berikut ini sebagian dari daftar karya kami, sebagai referensi Anda mengenai kami

Alamat Jasa Site Plan

Jalan Sapta Taruna Raya No. 2, Kebayoran Lama, Jakarta Selatan, DKI Jakarta 12310

Google Map: Studio Kami | Petunjuk Arah
Email: wahyudhi(at)yahoo.com | Website:

Kami sudah melayani ratusan penggambaran site plan pesanan dari seluruh Indonesia

Hubungi 0812-1231-3066